Our Projects Portfolio

Apartament

New Apartment

Apartment 1.380 sqf
TYPE

Apartament

Client

New Client

DELIVERY

7.25.2023

Overview

What we did

OCKHOME have been involved from the initial conceptual stage till the handing over. We started with a Concept Design and Preliminary Budget in line with Client expectation. We elaborated the Final Interior Design, complete the Construction Works, handed-over the project including Furniture.

Virtrual Tour 1Virtrual Tour 2

"The concept design was prepared so quickly, and every one of our comments was thoughtfully incorporated in accordance with our budget. Works complete on time. It’s rare to find such an efficient and attentive team. Highly recommended!

Micke

New Client
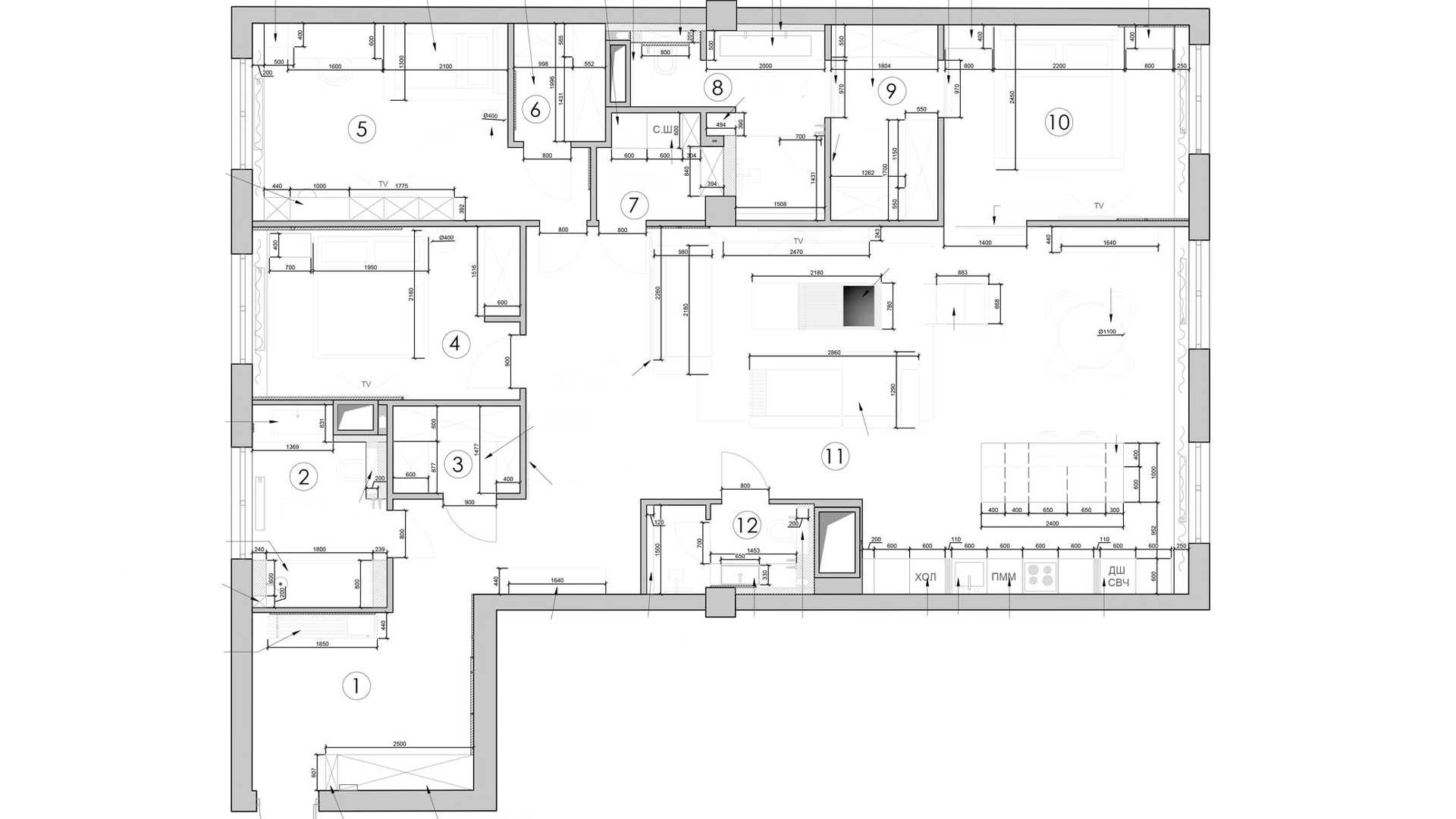
SPACE OPTIMIZATION

Floor Plan Optimization

View Live

Before and After

No items found.
Work Spotlight

Project gallery

whatapp us
No items found.

Ready to get your project moving?

Book the soonest available time slot to talk.